「クローゼット折戸用代替丁番D」をご購入いただきましたS様から、丁番金具を取替える作業をしていく中で折戸をクローゼット本体から取外す必要があるけれども、折戸が取外せないとのご連絡がありました。

「クローゼット折戸用代替丁番D」は、扉表面に切り欠きなどの堀込作業が必要なく、扉表面に直接金具を取付けるようになっています。クローゼット内部で取替作業ができればよいのですが、できない場合は折戸を取外す必要があります。

S様からのご連絡
以前、「クローゼット折戸扉用 旧型蝶番の代替金具D」を購入した者です。金具を替えるため、折戸を外そうとして苦戦しています。どこをどうすれば外れるのかが分かりません。

もしかしたら、これは外れない折戸なのでしょうか? 外れるものであれば、お手数ですが外し方を教えて頂ければ助かります。よろしくお願い致します。

安田屋家具店からの返信
クローゼット折戸用の部品は様々な工場が生産していますが、仕組みは似ていることが多いです。そこでお送りした丁番金具を生産している工場に聞いてみました。

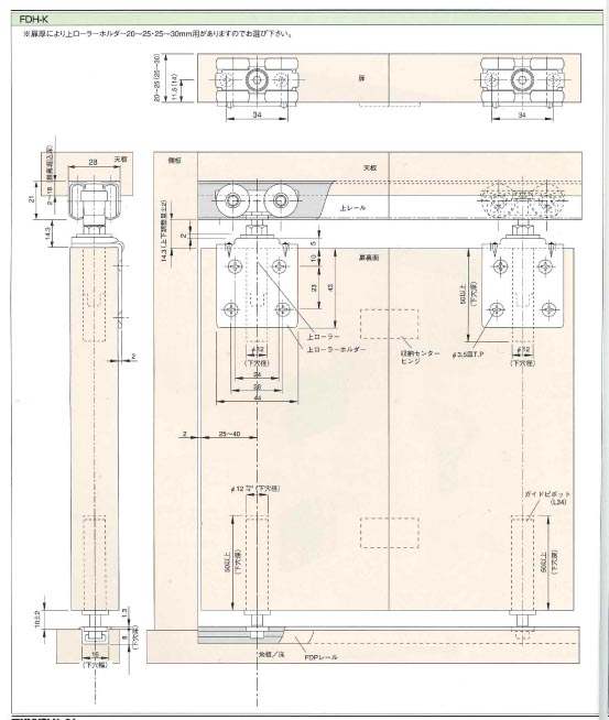
S様宅の金具とまったく同じ金具ではありませんが、その工場が仕組みがほぼ似た形状の昔の折り戸金具の場合から考えると、扉上部のローラー部品をはめ入れている上部のレールは「上レールジョイントレール方式」になっているとのことです。

 ⇒ 続きを読む

この記事の内容が役に立ったら共有してね!
    

Verified by MonsterInsights